Мой
Навес
8 495 902 66 35
8 968 433 66 35
info@moynaves.ru
Заказать бесплатный замер
Услуги
О нас
Проекты
Вопросы/Ответы
Калькулятор
Контакты
Блог
Навесы
Беседки
Террасы
О нас
Проекты
Вопросы и ответы
Калькулятор
Контакты
+7 495 902 66 35
Адрес офиса:
город Чехов, Вишнёвый бульвар, 3/1
Адрес производства:
город Чехов, пос. Новый быт, ул. Нати, 13
Навесы
Беседки
Террасы
Акции
О нас
Вакансии
Выполненные работы
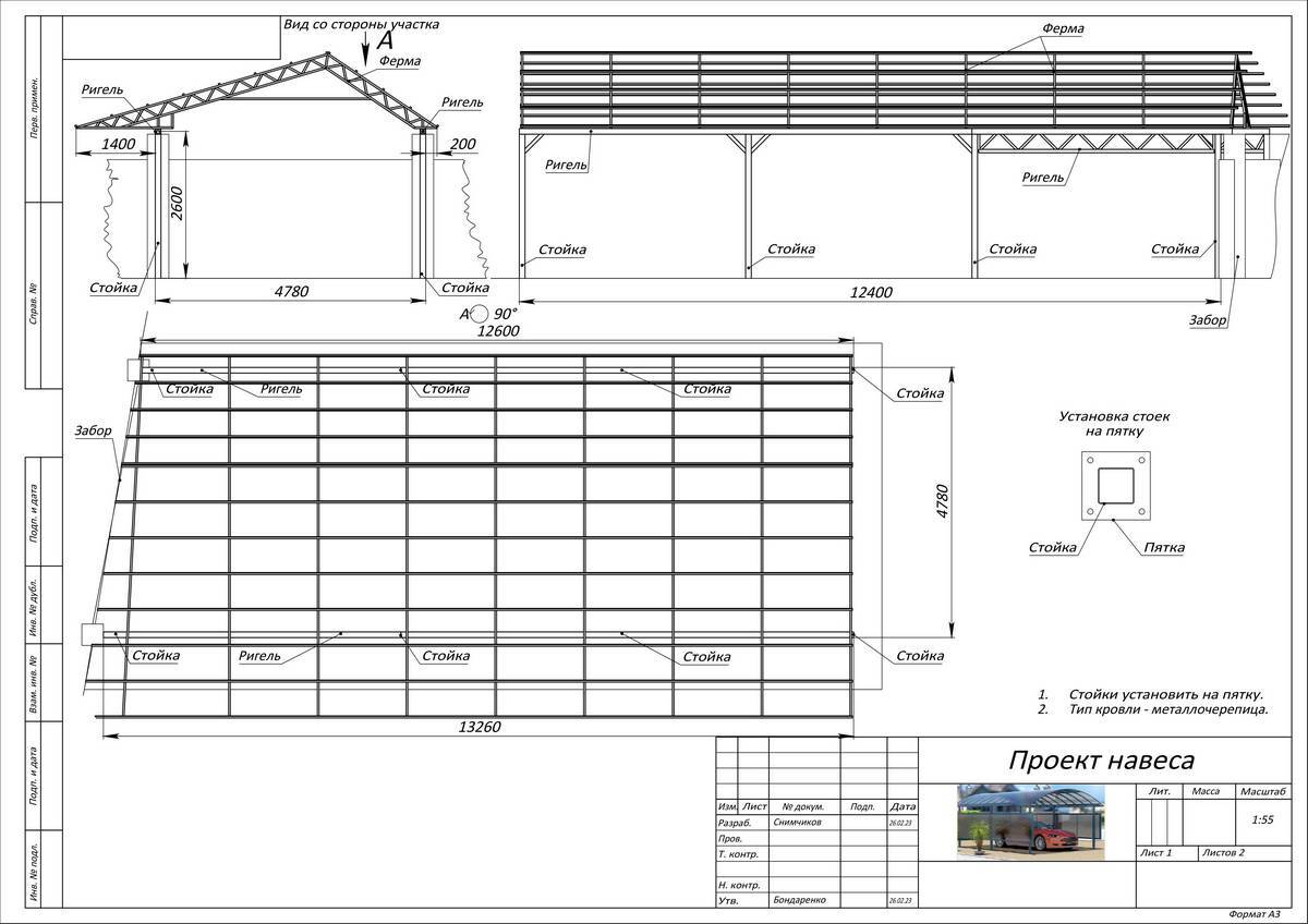
Проекты и чертежи
3D Модели
Выполненные объекты
Проект 805
Чертежи